323 141ST COURT NEBRADENTON, FL 34212




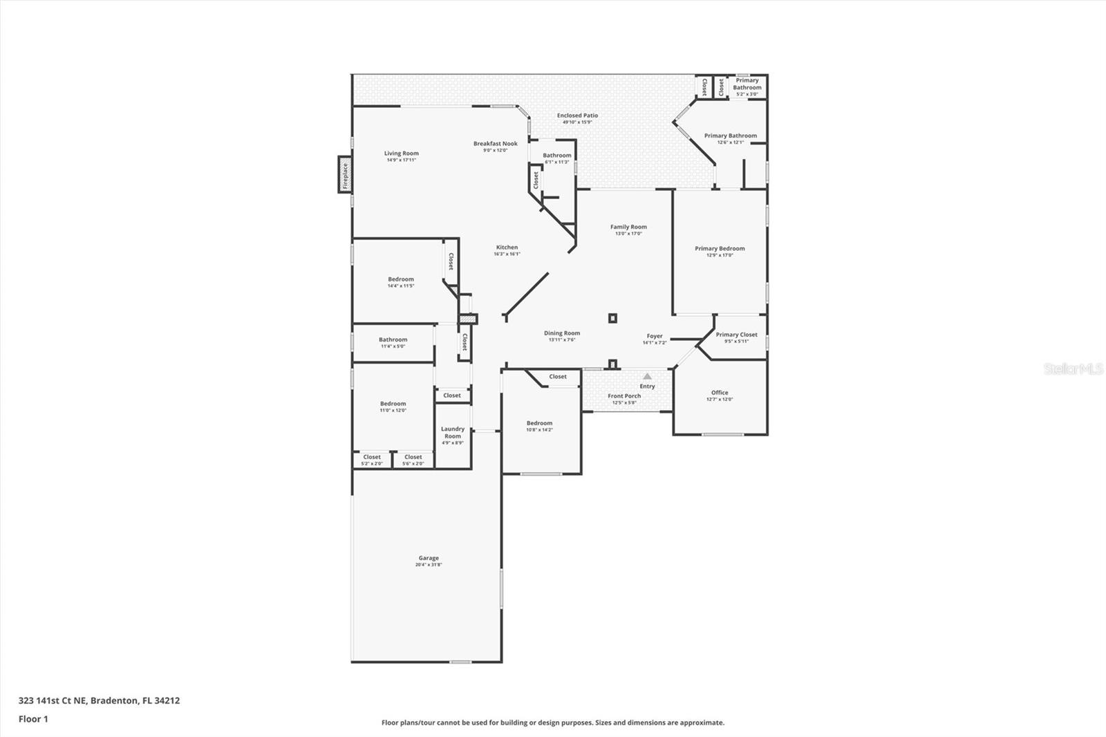
Set within a quiet cul-de-sac in desirable Country Creek, this four-bedroom, three-bath home built by La Maison. Tall ceilings and generous windows fill the home with natural light, while newer flooring throughout and a new roof (2024) make it truly move-in ready. The kitchen’s warm wood cabinetry anchors the living spaces, and the home’s thoughtful design includes a central vacuum system and plumbing in place for a future pool. The primary suite offers a private retreat with both a soaking tub and a separate shower. Out back, the most picturesque setting awaits — tranquil lake and preserve views, with plenty of space to create the outdoor oasis you’ve always imagined. With oodles of room for a pool, low HOA fees, and no CDD costs, this home blends comfort, value, and beauty in one of the area’s most naturally scenic communities.
| 6 days ago | Listing updated with changes from the MLS® | |
| a month ago | Listing first seen on site |
Listing information is provided by Participants of the Stellar MLS. IDX information is provided exclusively for personal, non-commercial use, and may not be used for any purpose other than to identify prospective properties consumers may be interested in purchasing. Information is deemed reliable but not guaranteed. Properties displayed may be listed or sold by various participants in the MLS Copyright 2025, Stellar MLS.
Last checked: 2025-11-03 05:11 PM EST






Did you know? You can invite friends and family to your search. They can join your search, rate and discuss listings with you.