2919 159TH TERRACE EPARRISH, FL 34219




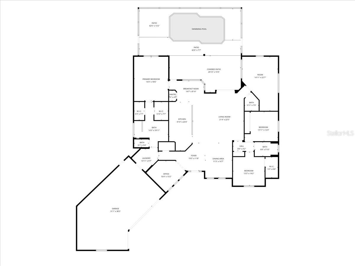
Under contract-accepting backup offers. Not Just a Wonderful Home and Property…But a Total Lifestyle! This light and bright contemporary styled newer home is perfectly suited for today’s living. The home offers a flexible floor plan to fit a variety of needs. 3 Bedrooms. 2.5 Baths. Expansive great room plan with tray ceiling, crown molding, and pocket sliding glass door. Large chef’s kitchen with 13' island, bar counter, pendant lighting, full extension drawers and shelves, custom spice rack units, dual walk-in pantries, induction cooktop with option for gas cooking (pre-plumbed in place), and under cabinet lighting. Dining nook adjacent to the kitchen offers casual dining with large aquarium glass window providing expansive views to the landscape and conservation preserve beyond, pond/lake, and the covered lanai and swimming pool. Den/home office is just off the foyer entry with views to the front of the home and is perfect for today’s work from home situations. Bonus room at the back of the home offers total flexibility to meet any need or desire...You Name It! You'll appreciate the oversized 862sf 3-car garage providing space for multiple vehicles, electric vehicle L2 charger, space for a workshop, includes a mini-split unit, ceiling fan, and extensive custom built-in overhead shelving for abundant storage. Spacious rear caged lanai with pavers and remote controlled professionally installed low voltage LED cage mounted lighting system. Pre-plumbed outdoor kitchen in place. Dual Ceiling fans. Inviting swimming pool with 4’ sheetfall waterfall with glass mosaic tile accent, variable speed pump, low voltage LED lighting system, and gas heated. Your Private Oasis! Location!, Location!!, Location!!! and value beyond compare within Twin Rivers. Rarely available combination being offered on one of the most prime cul-de-sac pond/lake and conservation preserve lots in all of this special community. Near 3/4 acres of a beautifully and professionally landscaped lot with automatic sprinkler system and remote controlled professionally installed exterior low voltage LED lighting system...front and back. Only 5 homes on the quiet cul-de-sac with wonderful neighbors. If Privacy, Tranquility, and Nature is what you seek...Look No Further! You have found a gorgeous meticulously maintained home with long list of amenities and features, and your own special piece of paradise. If not familiar or yet to explore the "River House" amenities…make sure to ask about access to this gated "Old Florida" area. Seller/Agent can provide access. Twin Rivers has its own boat launch, floating dock, fishing pier, canoe and kayak storage and launch area, covered pavilion, playground, and you'll have beautiful hiking options in a natural environment if this is your thing…this area is the spot, and along the Manatee River frontage that Twin Rivers offers. Other recreational community amenities include: A soccer field, basketball court, volleyball court, additional playgrounds, and excellent spots to take a nice walk. Twin Rivers residents organize many events to include holiday and other golf cart parades, schedules and promotes various food truck events quite often, and even a car show to name a few. There's a whole house Generac generator, 500 gallon underground propane tank, and NEW ROOF (2025). NOT in a Flood Zone (Zone X). Low HOA and NO CDD! HOA fee includes lawn/landscape watering. This Home and Property, and it's Many Features and Amenities are a Sure to Please! Welcome Home!
| 3 weeks ago | Listing updated with changes from the MLS® | |
| 4 weeks ago | Status changed to Pending | |
| 2 months ago | Listing first seen on site |
Listing information is provided by Participants of the Stellar MLS. IDX information is provided exclusively for personal, non-commercial use, and may not be used for any purpose other than to identify prospective properties consumers may be interested in purchasing. Information is deemed reliable but not guaranteed. Properties displayed may be listed or sold by various participants in the MLS Copyright 2026, Stellar MLS.
Last checked: 2026-01-29 10:18 AM EST







Did you know? You can invite friends and family to your search. They can join your search, rate and discuss listings with you.