9008 WILLOWBROOK CIRCLEBRADENTON, FL 34212




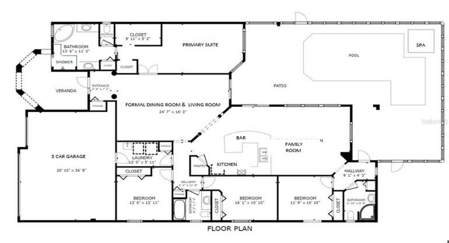
Luxury 4-Bedroom Pool Home in Safe Gated Golf Course Community – Bradenton-Sarasota, FL Move to Florida and enjoy year-round sunshine in a safe, family-friendly community. Welcome to Stoneybrook at Heritage Harbour, one of the most desirable neighborhoods in Southwest Florida. This updated 4-bedroom, 3-bath single-story home with a private heated saltwater pool and spa offers elegance, comfort, and the peace of mind that comes with living in a secure, gated golf course community. Beautifully updated Florida home for sale features a gourmet kitchen with a 12-foot granite bar, stainless steel appliances, and plenty of space for entertaining. The open-concept design connects the family room, living room, dining area, and primary suite—all overlooking the sparkling pool and serene preserve views. Elegant architectural details include tray ceilings, crown molding, arches, and columns. The luxurious primary suite offers a spa-like bath and a custom walk-in closet system. Recently renovated bathrooms feature quartz countertops and modern showers. Enjoy durable flooring throughout—tile, engineered hardwood, and carpet—for both style and comfort. The 3-car garage with golf cart door boasts new polyaspartic hard surface flooring, while a new 50-gallon water heater adds peace of mind. Outside Your Own Private Paradise has lush mature landscaping and the serene backdrop of a protected natural preserve. Relax on the expansive L-shaped lanai with a wading beach entry leading to a self-cleaning, heated saltwater pool and jetted spa. The screen-enclosed and covered seating and dining areas create the perfect space for outdoor living, entertaining, and year-round Florida enjoyment. Heritage Harbour: One of the Safest Places to Live in Florida Low crime rate: Safer than most U.S. neighborhoods Gated entrance: 24/7 controlled access for residents & guests Neighborhood watch: Active community participation Well-lit streets & maintained amenities: A secure, welcoming environment This makes Heritage Harbour an excellent choice for anyone seeking peace of mind. Resort-Style Living in Stoneybrook at Heritage Harbour Residents enjoy resort-inspired amenities with low HOA fees and an optional golf membership: Junior Olympic pool & spa Fitness center & clubhouse Tennis, pickleball, basketball & volleyball courts Dog park, playgrounds & walking trails On-site dining and social events Everything you need for an active Florida lifestyle is right here. Golf Course Designed by Arthur Hills – A Golfer’s Paradise Stoneybrook at Heritage Harbour boasts a championship golf course originally designed by the legendary Arthur Hills and fully renovated in 2022. Convenient Bradenton-Sarasota Prime Location Near Beaches, Shopping & Dining Shopping: Costco, Publix, Aldi, Target, University Town Center Dining: Longhorn Steakhouse, Seasons 52, Miller’s Ale House, Whole Foods (coming soon) Healthcare: Minutes to top medical centers and hospitals Recreation: White-sand Gulf Coast beaches and Sarasota’s arts & culture scene just a short drive away Family-Friendly Community with Low HOA Fees Heritage Harbour is perfect for families, with excellent schools, safe streets, and endless recreation. The community’s affordable HOA fees make luxury living attainable. Schedule a Private Tour of This Bradenton Home Today
| 6 days ago | Listing updated with changes from the MLS® | |
| 6 days ago | Status changed to Active | |
| 3 months ago | Listing first seen on site |
Listing information is provided by Participants of the Stellar MLS. IDX information is provided exclusively for personal, non-commercial use, and may not be used for any purpose other than to identify prospective properties consumers may be interested in purchasing. Information is deemed reliable but not guaranteed. Properties displayed may be listed or sold by various participants in the MLS Copyright 2025, Stellar MLS.
Last checked: 2025-10-29 12:23 PM EDT






Did you know? You can invite friends and family to your search. They can join your search, rate and discuss listings with you.