118 SAINT PIERRES WAYAPOLLO BEACH, FL 33572




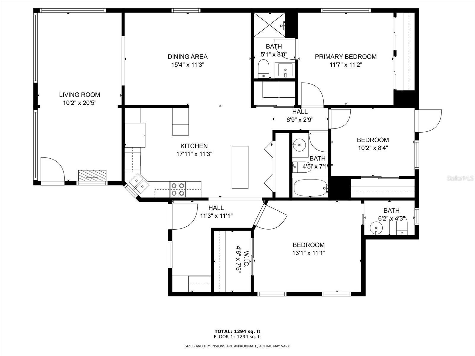
****VALUE PRICED**** Welcome to Caribbean Isles Residential Cooperative, a 55+, Waterfront, Resident Owned Community that stands out from many. This 3 Bed, 2 ½ Bath home offers an array of features for comfortable living. Some of the features include vaulted ceilings throughout, creating an airy and spacious atmosphere. The kitchen, with it's eat-in area, has plenty of room. The living room, versatile in function, can be utilized as a living room or an expansive dining area. The Florida Room is surrounded by windows for maximum natural light. The Primary Bedroom features an ensuite full bathroom, while the second primary bedroom includes a convenient ensuite ½ bath, making it an ideal space for guests, separate from the main living areas. A full bath in the hallway adds to the convenience. Recent upgrades include replacement of all floors, a AMS weather-lok roof-over system that has a Limited lifetime warranty. Beyond the house, explore the community's outstanding Resort Style Amenities. Outdoor enthusiasts will appreciate the kayak and boat launch facilities, with direct access to Tampa Bay through the canal system. Engage in friendly competition with bocce ball, shuffleboard courts, and horseshoes. The heated community pool offers year-round enjoyment. Indoors, the clubhouse beckons with a craft room and a spacious game room equipped with pool tables, card tables, an indoor bar, shuffleboard, and darts—perfect for fostering creativity and socializing. The community hosts a variety of activities throughout the year, from themed dinners to dances, ensuring there's always something exciting happening to suit your preferences. Centrally located between Tampa and Sarasota/Bradenton, this community offers easy access to an abundance of nearby activities. Beaches and amusement parks are just a day trip away. We extend a warm invitation for you to visit and discover why so many have chosen to call Caribbean Isles home.
| yesterday | Listing updated with changes from the MLS® | |
| 2 days ago | Listing first seen on site |
Listing information is provided by Participants of the Stellar MLS. IDX information is provided exclusively for personal, non-commercial use, and may not be used for any purpose other than to identify prospective properties consumers may be interested in purchasing. Information is deemed reliable but not guaranteed. Properties displayed may be listed or sold by various participants in the MLS Copyright 2025, Stellar MLS.
Last checked: 2025-12-13 06:03 PM EST






Did you know? You can invite friends and family to your search. They can join your search, rate and discuss listings with you.